*do wyceny indywidualnej
*do wyceny indywidualnej
Rabat zostanie naliczony automatycznie przy wykonywaniu oferty.
Oferujemy nadzór autorski wyłącznie dla projektów komercyjnych. Dla tej usługi wykonujemy osobną ofertę.
*wyceniany indywidualnie.
konsultacja projektowa w stawce godzinowej od 400 zł/h

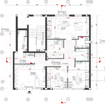
Czy też rzut aranżacji. Rysunki 2D podobne graficznie do rysunków od deweloperów, ale bardziej szczegółowe. Pokazują proponowane rozmieszczenie pomieszczeń, mebli i wyposażenia, zwykle w 2-3 wariantach.

Wizualizacja wnętrza to obrazek, który pomaga ci zobaczyć, jak wygląda pokój lub wewnątrz domu lub gabinetu lekarskiego. Obrazuje, gdzie będą meble, jakie będzie wykończenie ścian, oświetlenie czy też inne dodatki . To po prostu pomaga Ci zobaczyć, jak będzie wyglądał Twój pokój, zanim zaczniesz go urządzać.

Rysunki techniczne - rysunki 2d. Zawierają informacje dotyczące wymiarów, układu elementów konstrukcyjnych (ścian), instalacji, materiałów, detali itp. Rysunki wykonawcze zawierają również rozkład mebli do wyceny i wykonania przez stolarza.

lub specyfikacja.
Zapisana w formie tabeli (z linkiem internetowym) do produktów i materiałów, które Architekt poleca Inwestorowi do kupienia, by zrealizować projekt. Jest to sugerowana 'lista zakupów'.